Shanghe Concrete Batching Plant

A concrete batching plant that combines aggregates, cement, water, and additives in exact proportions to manufacture consistent, high-grade concrete for construction applications. The stationary concrete batching plant is available in a comprehensive range of capacities to meet every project demand, including models from 25m³/h and 50m³/h, up to 60m³/h, 75m³/h, 90m³/h, 120m³/h, 150m³/h, 180m³/h, and 240m³/h.
Stationary concrete batching plants are ideal for high-volume, consistent concrete supply. Their key applications include large-scale infrastructure projects like roads, dams, bridges, airports, and ports. They are also essential for major commercial and industrial buildings. Additionally, these plants are configured to produce specialty concrete, such as precast elements and roller-compacted concrete, for specific manufacturing requirements.
Stationary Concrete Plant Types

They are primarily classified by their aggregate feeding method and production type.
- Classification by Aggregate Feeding Method
The core distinction lies in the system used to transport raw materials (gravel, sand, etc.) to the central mixer.
Skip Hoist Type: This design uses a large bucket or skip to lift weighed aggregates to the mixer at a steep angle.
Advantage: Requires a smaller footprint, making it suitable for sites with space constraints.
Belt Conveyor Type: This type employs a long, often covered conveyor belt to transport materials to the mixer.
Advantage: The enclosed system minimizes dust and contamination, supports higher concrete quality, and allows for simultaneous aggregate transport and mixing, thereby increasing overall production capacity.
- Classification by Production Type
Concrete plants are also categorized by their final production process and capability.
Wet Mix Plant (Central Mixing): Equipped with a central concrete mixer that blends all ingredients (aggregates, water, cement, additives) into a uniform, ready-to-pour concrete. This is the standard “ready-mix concrete” plant type.
Dry Batch Plant: These facilities weigh and load dry materials (cement, aggregates) into transit mixer trucks. Water is added later, and the complete mixing process occurs in the truck during transit to the job site.
Precast Concrete Plant: Specialized stationary plants configured to produce specific concrete products—such as pipes, columns, beams, and pavers—which require precise and consistent mix designs.
- Additional Configuration Options
Stationary plants offer flexible customization with various features to meet specific project needs
Containerized Design: The equipment is housed within a container-like structure to reduce noise and dust, ensuring better environmental compliance.
Foundation-Free Design: This configuration requires little to no concrete foundation, enabling faster installation compared to traditional fixed-base plants.
Specialized Equipment: Optional systems include those for cold-weather operation (steam generators, insulated panels), dedicated additive scales (for ice, fly ash, etc.), and advanced fully automated computer control systems for precise quality control.
Advantages
High Production Capacity: These plants are specifically designed for high-volume, continuous production, with hourly output reaching tens to hundreds of cubic meters. This makes them ideal for large-scale projects like dams, highways, and airports.
Superior Quality Control & Consistency: Featuring advanced automation, computer control systems, and precise batching mechanisms, stationary concrete batching plants ensure every batch has identical proportions. This guarantees the production of high-quality concrete that meets strict structural specifications.
Durability & Long Service Life: Constructed with robust, heavy-duty materials, stationary equipment is built for long-term, continuous operation in harsh construction environments. This reduces breakdown rates and extends operational lifespan.
Operational Efficiency: On-site production at a fixed plant significantly reduces or eliminates the need for long-distance concrete transportation. This minimizes associated fuel costs, transit delays, and the risk of concrete quality degradation during transit.
Versatility for Custom Mixes: These plants can easily incorporate various admixtures and use different types of cement and aggregates. This provides the flexibility to produce a wide range of specialized concrete mixes (e.g., for reinforced concrete, precast elements) to meet specific project requirements.
Cost-Effectiveness (Long-Term): While the initial investment is higher than mobile alternatives, the accumulated efficiencies and savings in material, labor, and transportation costs over time deliver a strong return on investment for large and long-duration projects.
Environmental Control: Modern stationary plants can be equipped with advanced features such as dust collection systems, water recycling, and noise reduction designs. This helps minimize environmental impact and ensures regulatory compliance.
Working Principle
Stationary concrete batching plants produce high-quality concrete by systematically and automatically measuring and mixing precise proportions of raw materials (aggregates, cement, water, and admixtures) in a central mixer. The entire process is managed by an automated control system, ensuring consistency and accuracy according to predetermined mix designs.


- Material Storage & Handling: Raw materials are stored in designated areas to maintain quality.
- Aggregates (sand, gravel, crushed stone) are stored separately in compartments to prevent contamination.
- Cement and other powders (e.g., fly ash) are stored in sealed silos to prevent moisture absorption.
- Water and chemical admixtures are held in tanks or containers.
- Weighing & Batching: Each material is precisely weighed using dedicated scales or weigh hoppers with load cells to meet exact recipe requirements.
- Aggregates are typically weighed on conveyor belts or in collecting hoppers.
- Cement, water, and admixtures are weighed separately in independent systems, often located directly above the mixer.
- Conveyance to Mixer: Once all components reach their correct weight, the control system initiates their transfer to the central mixer.
- Aggregates are transported via conveyor belts or hoppers.
- Powdered materials are conveyed via screw conveyors.
- Water and admixtures are pumped through pipelines.
- Mixing Process: All ingredients are combined and uniformly agitated for a specified time in the mixer (typically a twin-shaft or pan mixer in stationary plants). This step is crucial for achieving the concrete’s required workability and strength.
- Discharge & Transport: After thorough mixing, the mixer’s discharge gate opens, and the freshly mixed, homogeneous concrete is released into waiting concrete mixer trucks or pumps for transport to the construction site.
Key Components
- Aggregate Storage & Feeders: Store and feed aggregates of various sizes.
- Cement Silos: Store cement and fly ash, protecting them from moisture.
- Weighing Systems: Ensure the precise batching of all raw materials.
- Conveying Systems: Transport materials between storage, weighing, and mixing points (e.g., conveyor belts, screw conveyors, pumps).
- Concrete Mixer: The central unit where all ingredients are combined and mixed.
- Control System: The “brain” of the operation, utilizing automation, sensors, and software to manage the entire process, control mix proportions, and ensure quality.

Video
Case

HZS120 Concrete Batching Plant in The DRC

HZS120 Concrete Batching Plant in Tehran, Iran
Specification
| Whole station section | Model | HZS25 | HZS35 | HZS50 | HZS60 | HZS75 | HZS90 | HZS120 | HZS180 | HZS240 |
| Theoretical productivity (m ³/h) | 25 | 35 | 50 | 60 | 75 | 90 | 120 | 180 | 240 | |
| Standard discharge height (m) | 1.5-3.8 | 1.6-3.8 | 2.7-3.8 | 3.8 | 2.7-3.8 | 3.8 | 4 | 4 | 4.2 | |
| Work cycle time (S) | 72 | 72 | 72 | 60 | 72 | 60 | 60 | 60 | 180 | |
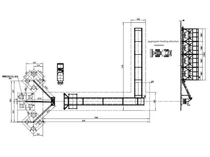
| Dimensions (mm) (length, width, height) | 11693×13060×17245 | 12922×13000×17245 | 14950×17840×17245 | 36500×11300×20400 | 15950×18840×17245 | 51093×19100×21600 | 51093×19100×21600 | 51093×19100×21600 | 56000×22000×21000 | |
| Total installed capacity (kw) | 50.25 | 75 | 115 | 105 | 120 | 145 | 210 | 260 | 330 | |
| Blender section | Model | JS500 | JS750 | JS1000 | JS1000 | JS1500 | JS1500 | JS2000 | JS3000 | JS4000 |
| Ingredient machine section | Model | PLD800 | PLD1200 | PLD1600 Single Scale | PLD1600 Pneumatic Scale | PLD2400 | PLD2400 | PLD3200 | PLD4800 | Ground warehouse style |
| Pneumatic system | Air compressor model | 1.0-7 | 1.0-7 | 1.0-7 | 1.5-7 | 1.0-7 | 1.8-7 | 1.8-7 | 1.8-7 | 1.8-7 |
| Rated displacement (m ³/min) | 1.67 | 1.67 | 1.67 | 1.67 | 1.85 | 1.67 | 1.67 | 1.67 | 1.67 | |
| Rated exhaust pressure (MPa) | 0.8 | 0.8 | 0.8 | 0.8 | 0.8 | 0.8 | 0.8 | 0.8 | 0.8 | |
| Motor power (kw) | 5.5 | 5.5 | 5.5 | 7.5 | 11 | 11 | 15 | 18.5 | 18.5 | |
| Weighing system | Sand and gravel measurement accuracy range (kg) accuracy | ±2% | ±2% | ±2% | ±2% | ±2% | ±2% | ±2% | ±2% | ±2% |
| Cement measurement accuracy range (kg) accuracy | ±1% | ±1% | ±1% | ±1% | ±1% | ±1% | ±1% | ±1% | ±1% | |
| Water measurement accuracy range (kg) degree | ±1% | ±1% | ±1% | ±1% | ±1% | ±1% | ±1% | ±1% | ±1% | |
| Additive measurement accuracy range (kg) degree | ±2% | ±2% | ±2% | ±2% | ±2% | ±2% | ±2% | ±2% | ±1% |

